Vattenpost SELLY

Selly
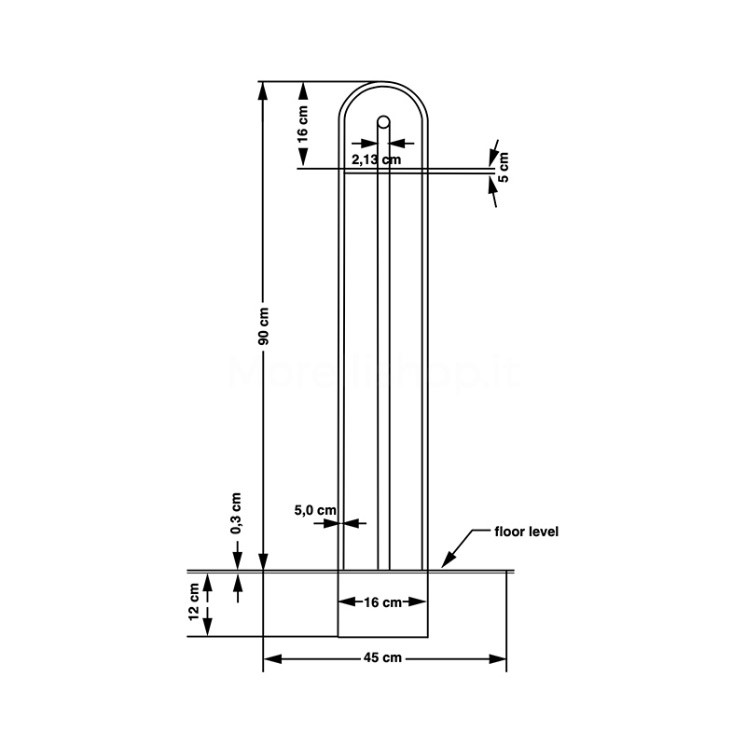
Modern vattenpost med uppsamlingskärl, bilden visar med kran 9.
(Vattenposten måste stängas av vintertid och tömmas på vatten)

Material: Galvaniserat stål med pulverlack
Färg: Antracitgrå
Nettovikt: 25kg
Anslutning: ½”
Längd på plattan: 68cm

Tillbehör och alternativ:
Självstängande kran, slangkran m.m.
Kontakta oss för övriga färger

FASTSÄTTNING: För att fixera denna modell på ett säkert sätt rekommenderar vi att du placerar den på en plan gjuten yta.
UTSLÄPP: Vattenutsläppet är av typen "läckage": det finns en bräddavloppsöppning inuti bassängen som gör att vattnet rinner in i fontänschaktet och hindrar det från att svämma över. Avloppet är inte gängat så det kan inte dras i rör, så det rekommenderas under installationen att tillhandahålla ett avlopp på betongplattan där bassängen ska installeras.

Passar för installation på t.ex. kyrkogårdar, torg eller parker

Artikelnr:
46100
No items found.